특허
아스콘 제조 설비용 대기 유해 물질 저감 장치(regenerative catalytic oxidizer for asphalt plant)
- 날짜 : 2026.01.16 10:50
[발명의 명칭]
아스콘 제조 설비용 대기 유해 물질 저감 장치(regenerative catalytic oxidizer for asphalt plant)
[출원번호/일자)]
2023-0050443 (2023.04.18)
[등록번호/일자)]
2605965 (2023.11.21)
[요약]
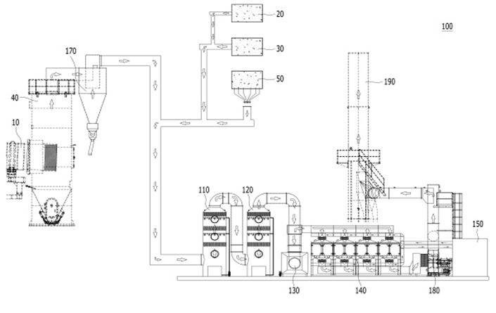
아스콘 제조 설비용 대기 유해 물질 저감 장치가 개시된다. 본 발명의 일 측면에 따르면, 아스콘 제조 설비에 포함되는 재생 골재 건조 유닛, 아스팔트 탱크, 아스콘 믹서 유닛 및 유해 물질 포집 유닛 중 어느 하나로부터 배출 가스를 제공받아 세정하고 배출 가스에 포함된 분진 및 대기 유해 물질을 집진하는 제1 세정 집진 유닛, 제1 세정 집진 유닛으로부터 배출 가스를 제공받아 세정하고 배출 가스에 포함된 분진 및 대기 유해 물질을 집진하는 제2 세정 집진 유닛, 제2 세정 집진 유닛으로부터 배출 가스를 제공받아 대기 유해 물질 필터를 이용하여 배출 가스에 포함된 대기 유해 물질을 흡착하는 유해 물질 흡착 유닛 및 유해 물질 흡착 유닛에 순환 가스를 제공하여 대기 유해 물질 필터에 필터링된 대기 유해 물질을 탈착시키고 촉매를 이용하여 순환 가스에 포함된 대기 유해 물질을 연소시키는 촉매 연소 유닛을 포함하는 아스콘 제조 설비용 대기 유해 물질 저감 장치가 제공된다.
[대표도면]
